Mail Us:
info@acuityconsultancy.in
Call Us:
+91 891 038 3521
Project
Wooden Residential Building
BIM modeling and Drawing Generation of a Residential Project in USA.
Project Status
Completed
Completed On
May 2025
Project Location
CASTRO VALLEY , USA
Project Duration
2 Months
Client Details
Private Client
Project Type
Software Used
Services Included
Project Overview
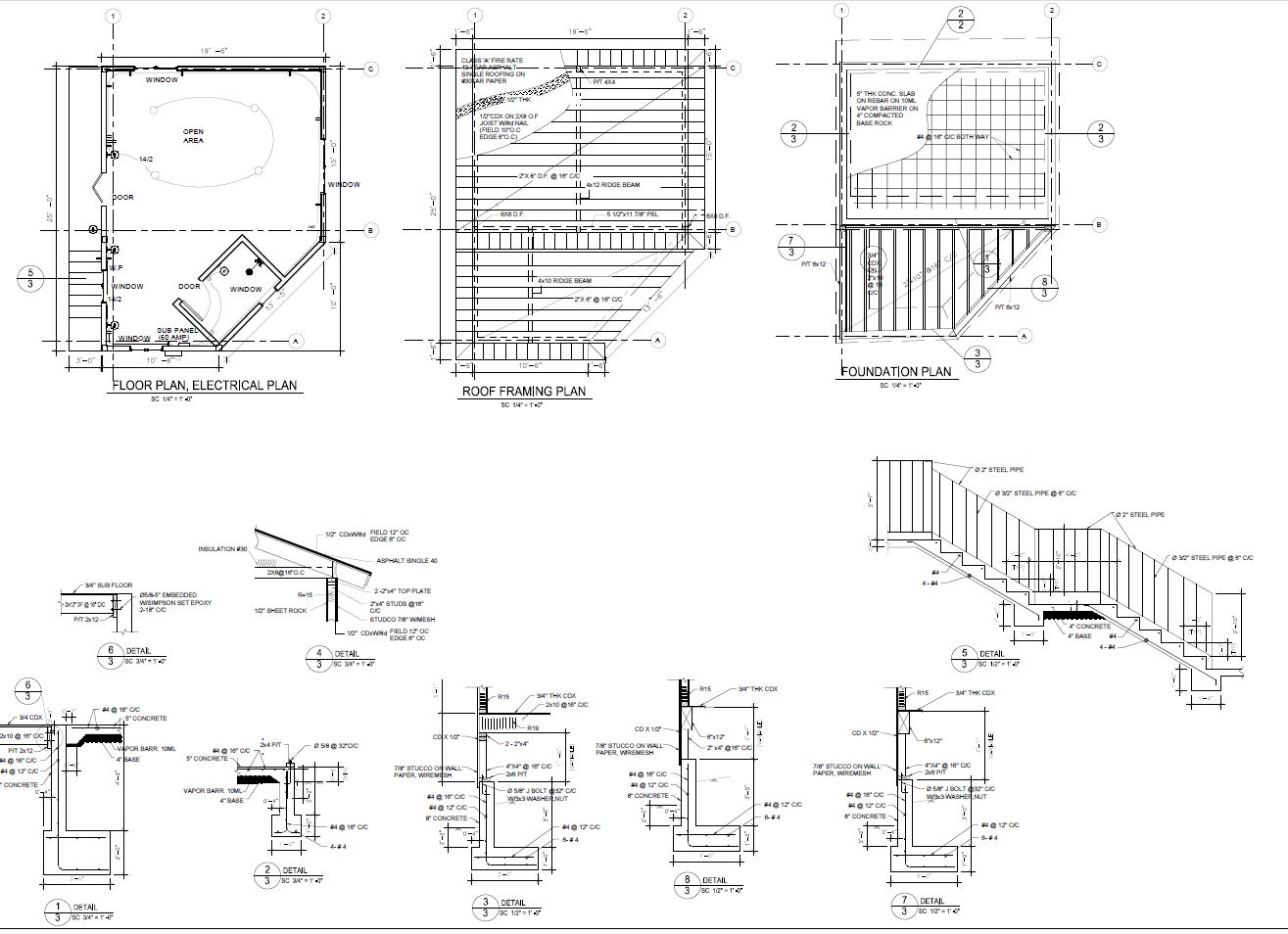
This Building is planned in a remote area where there is snowfall and extreme temperatures. This building has a concrete foundation and a retaining wall, and the upper walls are a wooden stud wall. The Roof systems are very complex, having a wooden runner resting on stud walls. Reinforcement details are also done for RCC works.
More Projects
Steel Pipe rack with platform
18/02/2026Underground Oil Tank
15/02/2026Three Story shopping Mall
15/02/2026Two Story Villa
15/02/2026Silo Tower
15/02/2026Inspired by this project?
Start your next project with our expert team and experience a smarter, more efficient project workflow.



